Description
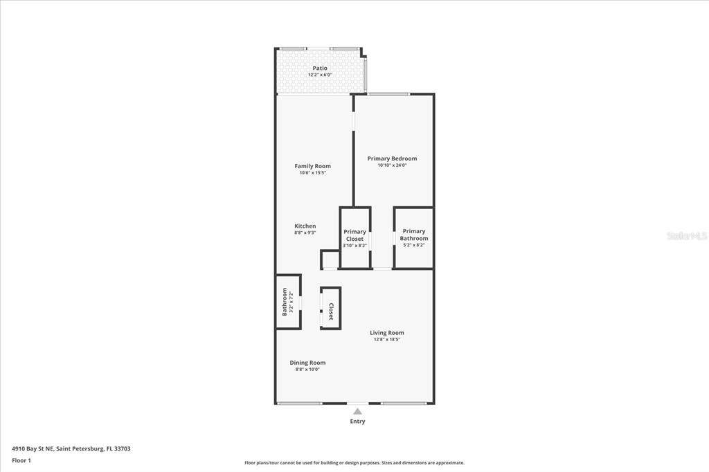
Welcome to maintenance-free Florida living at its finest! This rarely available ground-floor 1-bedroom, 1-bath condo is perfectly situated in the highly desirable 55+ community of Winston Park Northeast. With no stairs or elevators required for entry, this unit offers the ultimate in convenience and accessibility. Step inside to discover a bright and open floor plan that feels much larger than a typical one-bedroom. The spacious living area flows seamlessly into a dedicated dining space, perfect for entertaining. Extending your living space is a lovely Florida room/screened lanai, offering a peaceful spot to enjoy your morning coffee or an evening read while overlooking the meticulously landscaped courtyard and garden areas. The generously sized primary bedroom features ample closet space (often a walk-in), and the bathroom is conveniently located for easy access. You will love having your assigned covered parking space just steps from your front doorno long walks with groceries! Community & Lifestyle: Winston Park is a socially active, meticulously maintained community that feels like a private retreat. Prime Location: Location is everything! You are just minutes away from the vibrant Northeast Park Shopping Center. Golfers will appreciate being next door to Mangrove Bay and Cypress Links Golf Courses. Plus, you are only a short drive from the museums, pier, and history of Downtown St. Petersburg and the sparkling waterfront parks. Don't miss this opportunity to own an affordable slice of paradise in one of St. Pete's favorite neighborhoods. Schedule your showing today!
-
1BEDS
-
N/AACRES
-
1BATHS
-
11/2 BATHS
-
920SQFT
-
$185$/SQFT
School Information
Description
Welcome to maintenance-free Florida living at its finest! This rarely available ground-floor 1-bedroom, 1-bath condo is perfectly situated in the highly desirable 55+ community of Winston Park Northeast. With no stairs or elevators required for entry, this unit offers the ultimate in convenience and accessibility. Step inside to discover a bright and open floor plan that feels much larger than a typical one-bedroom. The spacious living area flows seamlessly into a dedicated dining space, perfect for entertaining. Extending your living space is a lovely Florida room/screened lanai, offering a peaceful spot to enjoy your morning coffee or an evening read while overlooking the meticulously landscaped courtyard and garden areas. The generously sized primary bedroom features ample closet space (often a walk-in), and the bathroom is conveniently located for easy access. You will love having your assigned covered parking space just steps from your front doorno long walks with groceries! Community & Lifestyle: Winston Park is a socially active, meticulously maintained community that feels like a private retreat. Prime Location: Location is everything! You are just minutes away from the vibrant Northeast Park Shopping Center. Golfers will appreciate being next door to Mangrove Bay and Cypress Links Golf Courses. Plus, you are only a short drive from the museums, pier, and history of Downtown St. Petersburg and the sparkling waterfront parks. Don't miss this opportunity to own an affordable slice of paradise in one of St. Pete's favorite neighborhoods. Schedule your showing today!
© 2025 My Florida Regional MLS DBA Stellar MLS. All rights reserved. All listings displayed pursuant to IDX. All listing information is deemed reliable but not guaranteed and should be independently verified through personal inspection by appropriate professionals. Listings displayed on this website may be subject to prior sale or removal from sale; availability of any listing should always be independently verified. Listing information is provided for consumers personal, non-commercial use, solely to identify potential properties for potential purchase; all other use is strictly prohibited and may violate relevant federal and state law. Data last updated 2025-12-05T23:44:59.07.
