Description
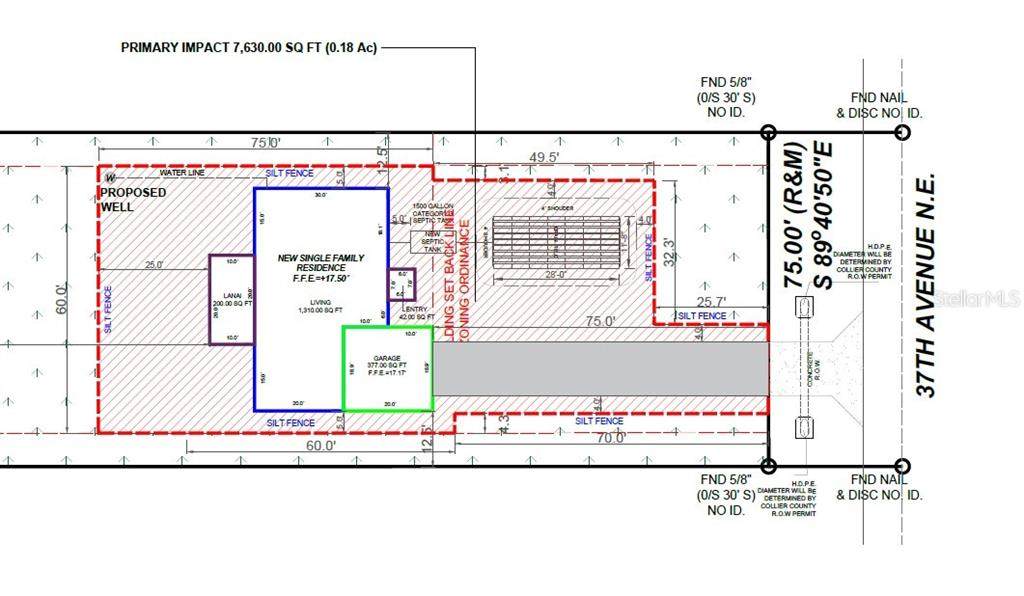
DEP Report available and ERP plans APPROVED for a 1310sf ; 2 car garage with a lanai. The ERP Permit has already been obtainedno waiting required. A current survey is also included. All supporting documents can be provided upon request. See picture of the floorplan attached. LOCATION, LOCATION, LOCATION! Off of Everglades Blvd and 37th Ave NE. This outstanding vacant lot presents an excellent opportunity for anyone to build their ideal home or retreat. Situated in the rapidly growing Golden Gate Estates community in Naples, this area offers a peaceful country lifestyle with no HOA fees. Conveniently located just a short drive from Naples' renowned beaches, top-rated schools, golf courses, shopping, and dining, this property combines privacy with accessibility. Don't miss the chance to own a prime piece of Southwest Florida real estate.
-
0BEDS
-
1.14ACRES
-
0BATHS
-
01/2 BATHS
School Ratings & Info
Description
DEP Report available and ERP plans APPROVED for a 1310sf ; 2 car garage with a lanai. The ERP Permit has already been obtainedno waiting required. A current survey is also included. All supporting documents can be provided upon request. See picture of the floorplan attached. LOCATION, LOCATION, LOCATION! Off of Everglades Blvd and 37th Ave NE. This outstanding vacant lot presents an excellent opportunity for anyone to build their ideal home or retreat. Situated in the rapidly growing Golden Gate Estates community in Naples, this area offers a peaceful country lifestyle with no HOA fees. Conveniently located just a short drive from Naples' renowned beaches, top-rated schools, golf courses, shopping, and dining, this property combines privacy with accessibility. Don't miss the chance to own a prime piece of Southwest Florida real estate.
© 2025 My Florida Regional MLS DBA Stellar MLS. All rights reserved. All listings displayed pursuant to IDX. All listing information is deemed reliable but not guaranteed and should be independently verified through personal inspection by appropriate professionals. Listings displayed on this website may be subject to prior sale or removal from sale; availability of any listing should always be independently verified. Listing information is provided for consumers personal, non-commercial use, solely to identify potential properties for potential purchase; all other use is strictly prohibited and may violate relevant federal and state law. Data last updated 2025-11-16T10:45:09.56.
